Thang máy gia đình 350kg là loại thang máy có tải trọng trung bình, được thiết kế chuyên dụng cho nhà ở từ 3 đến 6 tầng. Với tải trọng này, thang máy có thể chở khoảng 4–5 người/lần, phù hợp với hầu hết các gia đình hiện nay.
Trong những năm gần đây, nhu cầu lắp đặt thang máy gia đình ngày càng tăng, đặc biệt tại các nhà phố và biệt thự. Vì vậy, báo giá thang máy gia đình 350kg là thông tin được nhiều gia chủ quan tâm khi chuẩn bị xây dựng hoặc cải tạo nhà ở.
Loại thang máy này không chỉ giúp việc di chuyển giữa các tầng trở nên thuận tiện hơn mà còn tăng giá trị và tính hiện đại cho ngôi nhà.

Chi phí lắp đặt thang máy gia đình 350kg phụ thuộc vào nhiều yếu tố như loại thang máy, số tầng, xuất xứ thiết bị và các tùy chọn nội thất cabin. Thông thường, giá thang máy gia đình 350kg trên thị trường hiện nay dao động từ: 350 triệu – 650 triệu đồng Mức giá cụ thể sẽ thay đổi tùy theo từng loại thang máy và cấu hình kỹ thuật.
| Loại thang máy | Giá tham khảo |
| Thang máy gia đình 350kg liên doanh | 350 – 450 triệu |
| Thang máy gia đình 350kg nhập khẩu | 550 – 650 triệu |
| Thang máy trục vít 350kg | 600 – 900 triệu |
Lưu ý: Bảng giá trên chỉ mang tính tham khảo, chi phí thực tế có thể thay đổi tùy theo công trình.
Khi tìm hiểu báo giá thang máy gia đình 350kg, gia chủ cần lưu ý rằng chi phí lắp đặt phụ thuộc vào nhiều yếu tố khác nhau.
Số tầng là yếu tố ảnh hưởng trực tiếp đến chi phí lắp đặt thang máy.
Ví dụ:
Nhà 3 tầng: chi phí thấp hơn
Nhà 5–6 tầng: chi phí cao hơn do cần thêm ray dẫn hướng, cáp tải và thiết bị điều khiển.
Thông thường, thang máy gia đình 350kg phù hợp với nhà 4–5 tầng.

Hiện nay có nhiều loại thang máy gia đình khác nhau:
Thang máy cáp kéo
Đây là loại thang phổ biến nhất hiện nay với ưu điểm:
Giá thành hợp lý
Vận hành ổn định
Dễ bảo trì
Thang máy trục vít
Ưu điểm:
Không cần hố pit sâu
Không cần phòng máy
Phù hợp nhà cải tạo
Nhược điểm là chi phí cao hơn so với thang cáp kéo.
Thang máy thủy lực
Loại thang này thường được sử dụng cho biệt thự cao cấp với thiết kế sang trọng, tuy nhiên giá thành cũng khá cao.
Xuất xứ thiết bị cũng ảnh hưởng lớn đến báo giá thang máy gia đình 350kg.
Thang máy liên doanh
Giá rẻ hơn
Thời gian lắp đặt nhanh
Phù hợp với đa số nhà phố
Thang máy nhập khẩu nguyên chiếc
Chất lượng cao
Thiết kế đẹp
Giá cao hơn
Cabin thang máy có thể thiết kế theo nhiều phong cách khác nhau như:
Cabin inox gương
Cabin inox sọc nhuyễn
Cabin kính
Nội thất càng cao cấp thì chi phí càng tăng.
Dưới đây là một số thông số phổ biến của thang máy gia đình 350kg.
| Thông số | Giá trị |
| Tải trọng | 350kg |
| Số người | 4 – 5 người |
| Tốc độ | 30 – 60 m/phút |
| Số tầng phù hợp | 3 – 6 tầng |
| Kích thước cabin | ~1000 x 1000 mm |
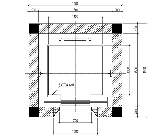
Để lắp đặt thang máy gia đình 350kg, công trình cần đảm bảo diện tích tối thiểu cho hố thang.
Thông thường kích thước tiêu chuẩn như sau:
Kích thước hố thang: 1400mm x 1400mm
Hố pit: 300 – 600mm
Chiều cao tầng trên cùng (OH): 3500mm
Tuy nhiên, kích thước có thể thay đổi tùy theo loại thang và thiết kế công trình.

Thang máy tải trọng 350kg được nhiều gia đình lựa chọn nhờ những ưu điểm sau:
Phù hợp với nhà phố: Với kích thước nhỏ gọn, thang máy 350kg dễ dàng lắp đặt trong các công trình có diện tích hạn chế.
Chi phí hợp lý: So với các loại thang máy tải trọng lớn, thang 350kg có chi phí đầu tư vừa phải, phù hợp với nhiều gia đình.
Tiết kiệm điện năng: Mức tiêu thụ điện của thang máy gia đình khá thấp, tương đương một thiết bị điện gia dụng lớn.
Tăng giá trị ngôi nhà: Việc lắp đặt thang máy giúp công trình trở nên hiện đại và tiện nghi hơn, đồng thời tăng giá trị bất động sản.
Để lựa chọn thang máy phù hợp, gia chủ nên lưu ý một số kinh nghiệm sau.
Chọn đơn vị lắp đặt uy tín: Nên lựa chọn đơn vị có kinh nghiệm thi công nhiều công trình thực tế để đảm bảo chất lượng và an toàn.
Kiểm tra kích thước hố thang: Trước khi lắp đặt, cần khảo sát kỹ kích thước công trình để lựa chọn loại thang phù hợp.
Lựa chọn công nghệ phù hợp: Tùy theo nhu cầu sử dụng và ngân sách, gia chủ có thể chọn:
thang máy liên doanh
thang máy nhập khẩu
thang máy trục vít

Thang máy tải trọng 350kg có thể chở khoảng 4 – 5 người/lần, phù hợp với nhu cầu sử dụng của gia đình.
Thời gian lắp đặt thang máy gia đình thường từ 10 – 20 ngày tùy theo loại thang và điều kiện công trình.
Mức tiêu thụ điện của thang máy gia đình khá thấp, tương đương một máy điều hòa không khí.
Hy vọng bài viết trên đã giúp bạn hiểu rõ hơn về báo giá thang máy gia đình 350kg, cũng như các yếu tố ảnh hưởng đến chi phí lắp đặt và kinh nghiệm lựa chọn thang máy phù hợp.
Nếu bạn đang cần tư vấn chi tiết và nhận báo giá thang máy gia đình 350kg phù hợp với công trình, hãy liên hệ ngay với đơn vị cung cấp uy tín để được hỗ trợ nhanh chóng.